+375 29 836 11 11 Пн-Пт c 8:00 до 17:00
Типовые проекты
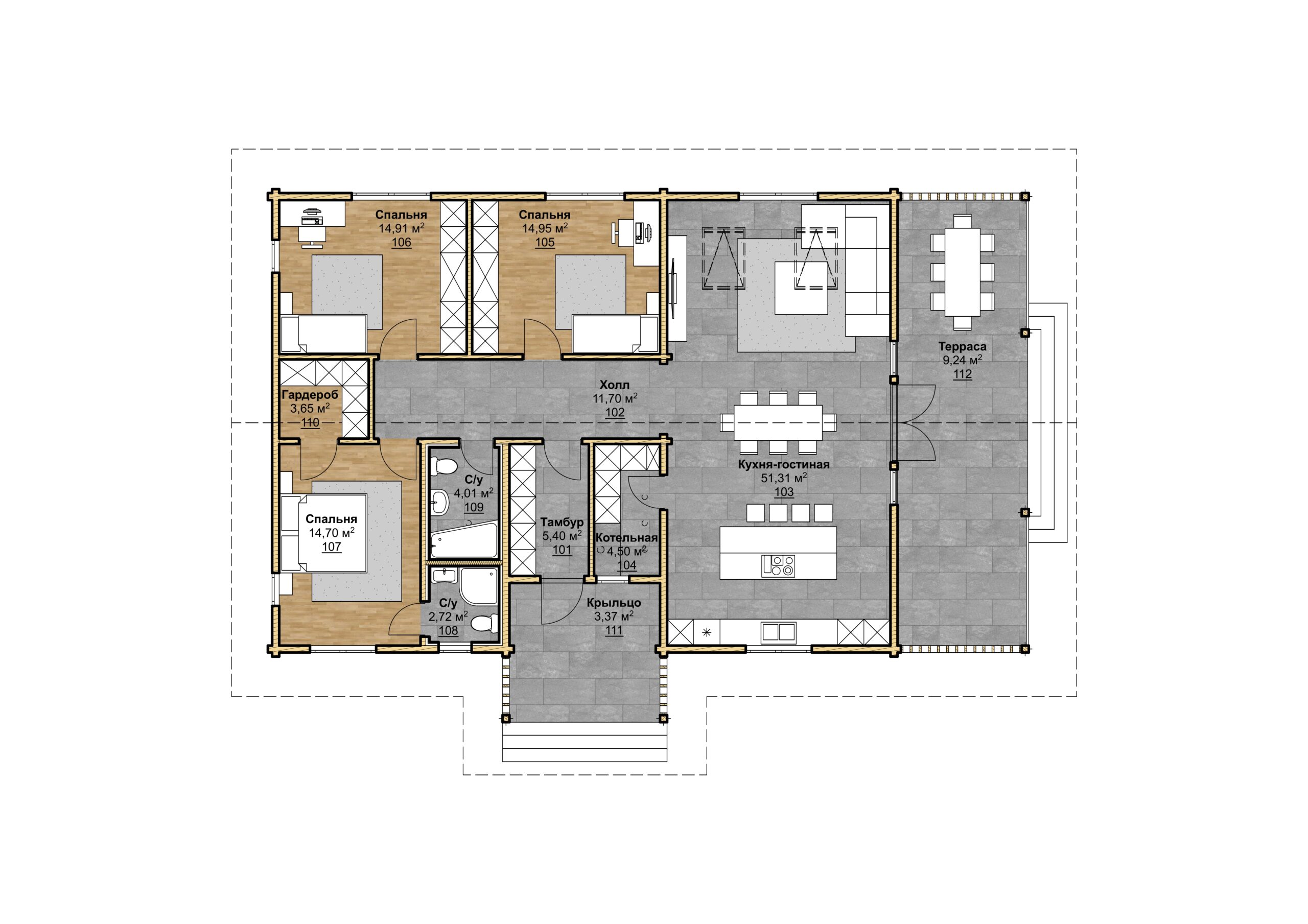
NORD 1
Площадь 169,88 м²
Цена Уточняйте у менеджера
Характеристики
Общая площадь дома 169,88 м²
Этажность 1 этаж
Тамбур 5,4 м²
Холл 11,7 м²
Кухня-гостиная 51,31 м²
Котельная 4,5 м²
Спальня 14,95 м²
Спальня 14,91 м²
Спальня 14,70 м²
Сан. узел 2,72 м²
Сан. узел 4 м²
Гардеробная 3,65 м²
Крыльцо 11,23 м²
Терраса 30,8 м²
Цена Уточняйте у менеджера(в BYN по Курсу НБРБ на день оплаты)
По вашим предпочтениям можно
внести изменения в типовой проект

Планировка

Одноэтажный дом с прекрасной эргономикой, в котором продумано все для проживания большой семьи. Объединенная гостиная и кухня с витражными окнами и выходом на террасу делают данную часть дома самой уютной, где все челны семьи будут проводить большую часть своего времени.
Стоимость за домокомплект от 33 000 долларов США
Стоимость за дом (теплый контур) от 63 700 долларов США

Особенности
Дом оснащен тремя спальнями. Одна из спален оборудована отдельным санузлом и гардеробом и предназначена для хозяев дома.
В доме также есть вместительная прихожая и котельная, где также можно разместить постирочный узел.
В зимнее время просторная гостиная позволит разместить всех гостей внутри дома, в летнее же время с данной задачей справится терраса в 32 квадратных метра.
План первого этажа

Получите подробную консультацию
по данному проекту

Свяжитесь с нами любым удобным способом
Телефон для связи
+375 29 836 11 11
Наш офис
25013, Брестский район, д. Збунин, Республика Беларусь
Режим работы
Пн-Пт c 8:00 до 17:00
или оставьте заявку на обратный звонок

    Нажимая кнопку “Перезвоните мне”, Вы соглашаетесь с Политикой конфиденциальности

    Что входит в базовую стоимость домокомплекта с тепловым контуром?

    Каждый дом комплектуется индивидуально,
    по согласованию с заказчиком следующими материалами:
    3D проект
    Архитектурное решение с 3D видами. План фундамента (по согласованию), размер кровли, сборочные чертежи всех элементов дома от нижнего бруса и до стропильной системы.
    Домокомплект
    Все стены (коробка) + стропильная система
    Дом может быть произведен в трех вариантах, в зависимости от выбранной толщены стен.
    Домокомплект
    Крепежная фурнитура
    Пропитка и покраска клееного бруса (TEKNOS,ZOBEL, Sirca , Tikkurila (пропитать дом необходимо сразу же после сборки). Это наше требование и рекомендация, так как при отсутствии защитного слоя (лака, грунтовки, масла), дерево может впитать влагу, потемнеть/почернеть - в таком случае производитель не несет гарантию за дом. Наша компания может оказать услугу по пропитке и покраске дома после согласования цвета с заказчиком.
    Домокомплект
    Входные двери и окна
    Окна деревянные (деревянные окна, двухкамерные стеклопакеты с европейской фурнитурой), деревянные двери с европейской фурнитурой и замками
    Домокомплект
    Кровельные материалы
    Фальцевая кровля, металлочерепица, гибкая кровля), утеплитель компании “Технониколь” либо аналоги
    Домокомплект

    Этапы постройки дома

    Оказываем помощь и поддержку для своих клиентов на этапе согласования проекта и при сдаче готового дома!
    1 – Геодезия участка
    2 – Геология участка
    3 – Архитектурный план дома
    4 – Сборка дома под ключ
    5 – Сборка дом
    Этап 1
    Геодезия участка

    Для подготовки к строительству необходимо начать с геодезии участка. Геодезия необходима  для правильной посадки дома на участке по отношению к вашему забору и проезжей части, т. к. имеются определенные нормы, установленные законодательством. Также при данной процедуре вы можете получить оценку расположения дома к сторонам света. Это очень важный момент, который не стоит игнорировать перед началом проектных и  строительных работ. Во-первых при неправильном расположении  фундамента — стройку могут запретить государственные органы и придется все начинать сначала. Во-вторых, наверняка у Вас есть предпочтение и пожелание, как солнце должно освещать ваши комнаты, какая сторона дома должна быть прохладнее, а где всегда должно быть тепло и уютно. В данном случае этап геодезии нельзя исключать.

    Этап 2
    Геология участка

    Геология участка. Данная процедура необходима для выбора правильного типа фундамента под планируемый дом. При наличии плана фундамента заказчик может  залить фундамент своими силами либо поручить этот шаг  нашей компании,

    Этап 3
    Архитектурный план дома

    Мы предлагаем на Ваш выбор два варианта сотрудничества:

    • при выборе типового проекта, мы сразу предоставим архитектурный проект, по которому можно строить дом. Экономия времени и денег — самый быстрый способ
    • корректировка типового проекта, либо индивидуальное проектирование. Данный вариант самый распространенный, так как заказчик ищет дом исключительно под свои предпочтения и имеет свое представление, как должен выглядеть дом его мечты.  Как правило данный этап может занимать от 1 месяца и более
    Этап 4
    Сборка дома под ключ

    В зависимости от сложности утвержденного архитектурного проекта, производство и комплектация дома займет от двух  до четырех месяцев. 

     

    Этап 5
    Сборка дом

    Сборка дома по тепловому контуру включает в себя монтаж стен, стропильной системы, кровли, окон и дверей, на этот этап отводится  от двух недель до одного месяца. По завершению данных работ (сборки) —  Ваш дом готов к внутренней работе.

    Похожие проекты